Appartement Vincennes 2 pièce(s) 45 m2


< Retour

Partager sur

gallery loader
Exclusivité

Appartement 45 m² - 2 Pièces - Vincennes 335 000


Description de l'offre Ref 30455


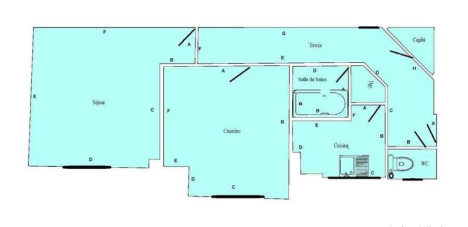
L'agence Oscar vous propose en exclusivité un très charmant deux pièces en étage d'un bel immeuble ancien. Situé à 10 minutes à pied du métro, il est composé d'une jolie entrée, d'une cuisine, d'un séjour lumineux exposé ouest, d'une chambre, d'une salle de bains, d'un WC indépendant et d'un cagibi. Vous serez séduits par son beau parquet d'origine et son fort potentiel en vue d'un rafraîchissement. Appartement très calme, avec jardin attenant à l'immeuble et proche de la place Diderot. Bus 118 et 124 à moins de 5 minutes à pied. Prévoir un changement de ballon pour passer en dpe E. Une cave de 3,5 m² au sous-sol complète le bien. Chauffage collectif au gaz, inclus dans les charges. A très bientôt pour une visite !Copropriété de 10 lots (Pas de procédure en cours).Charges annuelles : 2680.00 euros.

Diagnostics de performance énergétique


DPE
DPE
DPE en cours

Descriptif du bien


Code postal 94300


Surface habitable (m²) 45 m²


Nombre de chambre(s) 1


Nombre de pièces 2


Etage 2


Ascenseur NON


Nb de salle de bains 1


Type de cuisine EQUIPEE


Mode de chauffage Gaz


Type de chauffage Radiateur


Format de chauffage Collectif


Interphone OUI


Balcon NON


Cave OUI


Année de construction 1910


Copropriété OUI


nombre de lots 10


Quote Part annuelle des charges 2 680 €


Prix de vente honoraires TTC inclus 335 000 €


Cette annonce vous intéresse ?


* Champs obligatoires

* : Les informations recueillies sur ce formulaire sont enregistrées dans un fichier informatisé par La Boite Immo agissant comme Sous-traitant du traitement pour la gestion de la clientèle/prospects de l'Agence / du Réseau qui reste Responsable du Traitement de vos Données personnelles. La base légale du traitement repose sur l'intérêt légitime de l'Agence / du Réseau. Elles sont conservées jusqu'à demande de suppression et sont destinées à l'Agence / au Réseau. Conformément à la loi « informatique et libertés », vous disposez des droits d’accès, de rectification, d’effacement, d’opposition, de limitation et de portabilité de vos données. Vous pouvez retirer votre consentement à tout moment en contactant directement l’Agence / Le Réseau. Consultez le site https://cnil.fr/fr pour plus d’informations sur vos droits. Si vous estimez, après avoir contacté l'Agence / le Réseau, que vos droits « Informatique et Libertés » ne sont pas respectés, vous pouvez adresser une réclamation à la CNIL. Nous vous informons de l’existence de la liste d'opposition au démarchage téléphonique « Bloctel », sur laquelle vous pouvez vous inscrire ici : https://www.bloctel.gouv.fr Dans le cadre de la protection des Données personnelles, nous vous invitons à ne pas inscrire de Données sensibles dans le champ de saisie libre.
Ce site est protégé par reCAPTCHA, les Politiques de Confidentialité et les Conditions d'Utilisation de Google s'appliquent.

autres annonces immobilières correspondant à votre recherche

Les biens similaires pour : Vente Appartement Vincennes (94300)