

Partager sur
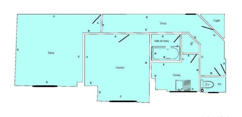
L'agence Oscar vous propose en exclusivité un très charmant deux pièces en étage d'un bel immeuble ancien. Situé à 10 minutes à pied du métro, il est composé d'une jolie entrée, d'une cuisine, d'un séjour lumineux exposé ouest, d'une chambre, d'une salle de bains, d'un WC indépendant et d'un cagibi. Vous serez séduits par son beau parquet d'origine et son fort potentiel en vue d'un rafraîchissement. Appartement très calme, avec jardin attenant à l'immeuble et proche de la place Diderot. Bus 118 et 124 à moins de 5 minutes à pied. Prévoir un changement de ballon pour passer en dpe E. Une cave de 3,5 m² au sous-sol complète le bien. Chauffage collectif au gaz, inclus dans les charges. A très bientôt pour une visite !Copropriété de 10 lots (Pas de procédure en cours).Charges annuelles : 2680.00 euros.
Code postal 94300
Surface habitable (m²) 45 m²
Nombre de chambre(s) 1
Nombre de pièces 2
Etage 2
Ascenseur NON
Nb de salle de bains 1
Type de cuisine EQUIPEE
Mode de chauffage Gaz
Type de chauffage Radiateur
Format de chauffage Collectif
Interphone OUI
Balcon NON
Cave OUI
Année de construction 1910
Copropriété OUI
nombre de lots 10
Quote Part annuelle des charges 2 680 €
Prix de vente honoraires TTC inclus 335 000 €
* : Les informations recueillies sur ce formulaire sont enregistrées dans un fichier informatisé par La Boite Immo agissant comme Sous-traitant du traitement pour la gestion de la clientèle/prospects de l'Agence / du Réseau qui reste Responsable du Traitement de vos Données personnelles.
La base légale du traitement repose sur l’intérêt légitime de l'Agence / du Réseau.
Elles sont conservées jusqu'à demande de suppression et sont destinées à l'Agence / au Réseau.
Conformément à la loi « informatique et libertés », vous pouvez exercer votre droit d'accès aux données vous concernant et les faire rectifier en contactant l'Agence / le Réseau.
Si vous estimez, après avoir contacté l'Agence / le Réseau, que vos droits « Informatique et Libertés » ne sont pas respectés, vous pouvez adresser une réclamation à la CNIL.
Nous vous informons de l’existence de la liste d'opposition au démarchage téléphonique « Bloctel », sur laquelle vous pouvez vous inscrire ici : https://www.bloctel.gouv.fr
Dans le cadre de la protection des Données personnelles, nous vous invitons à ne pas inscrire de Données sensibles dans le champ de saisie libre
Ce site est protégé par reCAPTCHA, les Politiques de Confidentialité et les Conditions d'Utilisation de Google s'appliquent.